·武汉·北·创智中心
武汉汉口北智能制造产业聚集地
汉口北 地铁口 0-200㎡ 2.5/f独栋厂房


项目地址:
武汉市黄陂区攀升大道与滨湖大道交汇处

品牌介绍:

项目简介:
汉口北创智中心位于武大高速与腾龙大道交汇处,项目总投资约50亿元,整体占地136,总建筑面积约13万平方米,整体现首批交付投产。按照四期建设,预计2025年9月实现首批交付投产。
项目整体定位为现代城市综合体,重点围绕高端装备制造、电子信息类、创新材料等产业领域,打造智能制造和高端科技研发产业聚集区。

项目区位:
黄陂区汉口北板块,三环线至四环线之间,周边高速和干道条件良好,能够快速通达汉口核心区,区位优势明显。环线上属于三环至四环内,区位较好,周边路网发达,铁、水、公、空齐备的立体交通网络,沿江高铁武汉天河站、武湖港、武大高速、天河机场。

交通配套:
毗邻轨道交通1号线汉口北站点(直线距离1.5km),快速达武汉主城区,地块毗邻新十公路(解放大道延长线)、汉口北大道等主干路、直线距离6km至三环,通达武汉三镇。
产业配套:
周边即为东湖高新项目、雄新、攀升、京天产业园;四季美农贸城、华南海鲜市场、汉口北商贸城等
物流配套:
万纬冷链物流园、滠口物流基地
商业配套:
万达广场、银禾广场、汉口北交易中心
教育资源:
汉口北高级中学、滠口中学

(图片源自网络)
产业定位:
智能制造 电子信息为主导产业
以及新材料、大健康、优质商贸类优质企业

产品介绍:
因大联科·汉口北创智中心根据当地产业特点及深耕临空港经济开发区的运营经验,规划有2.5层、3层、5层生产研发型厂房以及定制厂房专区,生产办公有机结合,7.2米层高空间布局灵活,厂房均预留一部货梯井,省心省力,适用于绝大多数行业的生产需求,生产效能有保障。

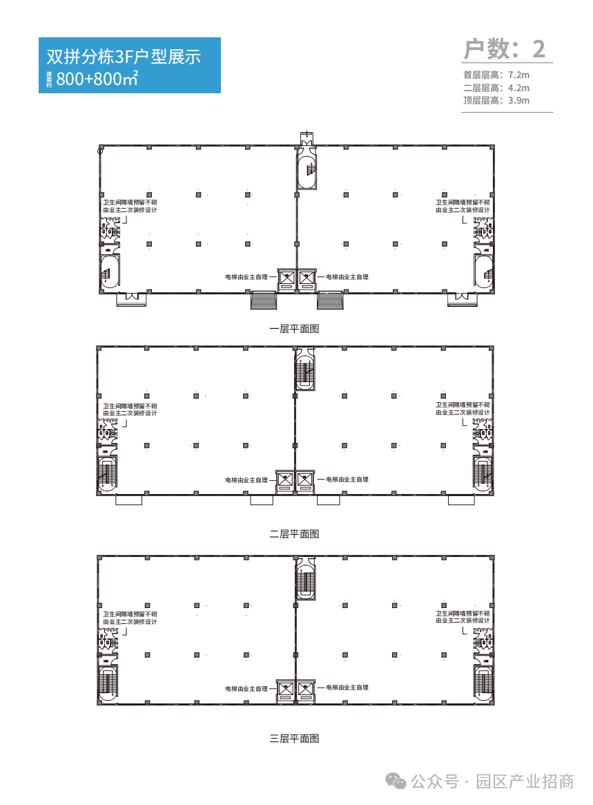
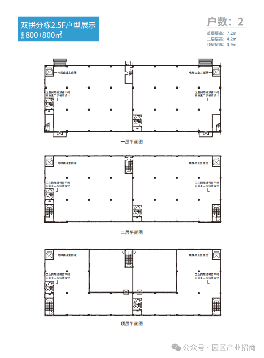
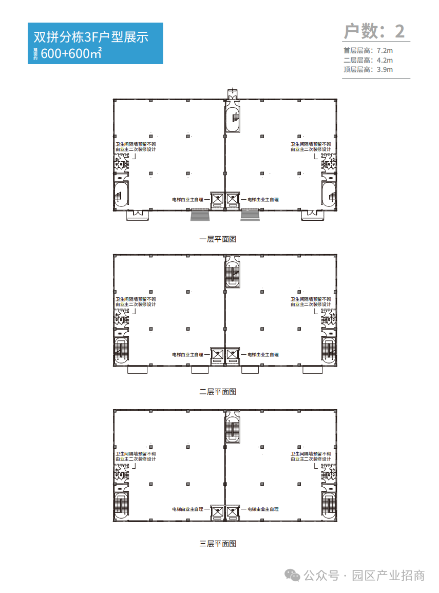
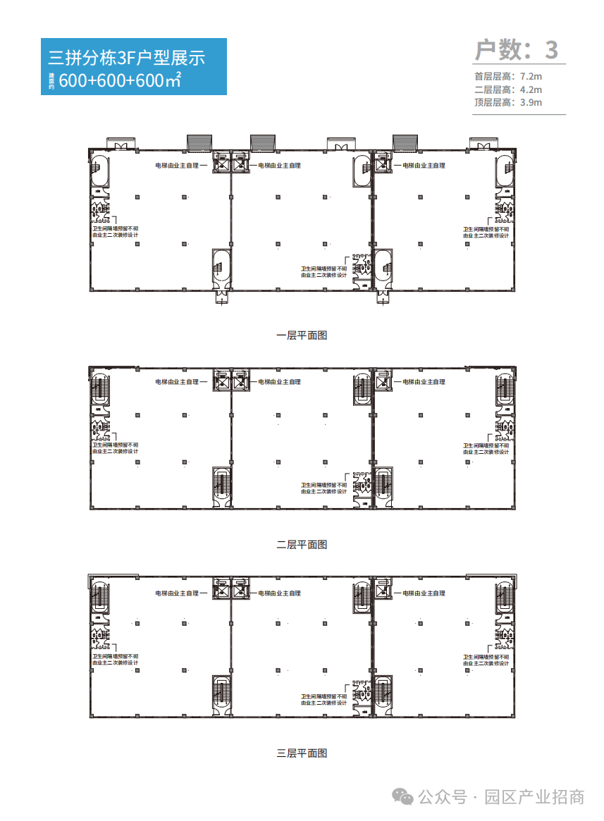
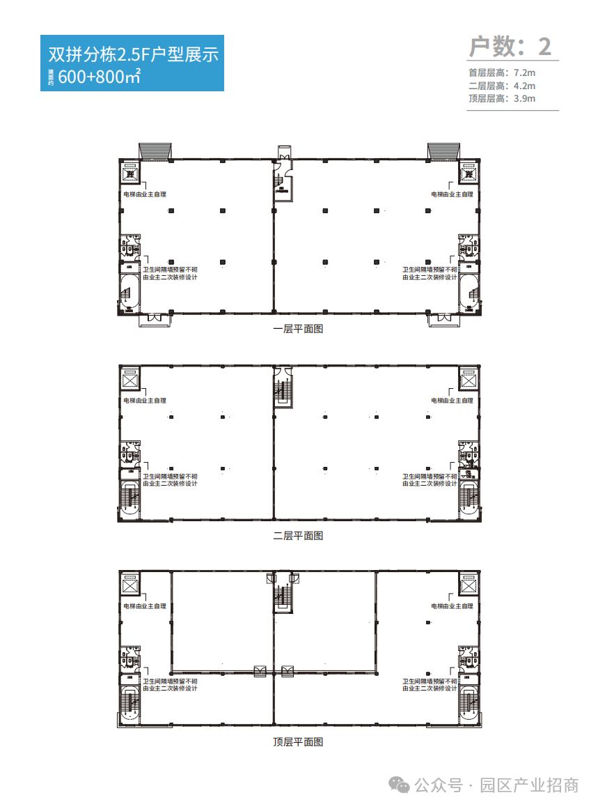
户型展示:
层高:首层:7.2m;二层:4.2m;顶层:3.9m
承重:首层:实心地;二层:500kg;顶层:350kg;
柱距:8米*8米
跨数:3*3/3*4
电梯:整栋预留2t电梯井(3.2m*2.8m),支持定制;分层安装2t电梯;
电容:50kva/1000㎡支持增容,高压双回路供电;





收费标准
物业费:整栋1.9元/㎡/月,分层2.2元/㎡/月
电费:按当地国家电网收费标准
水费:按当地国家收费标准
契税:3%
服务介绍:

免责申明:本文中所载内容及图片仅供参考,不作为合同要约。所有细节以政府部门批示和双方签订的《厂房定制合同》为准,开发商在法律允许范围内拥有解释权。
招商对接,公司总部招商中心

招商引资服务平台,厂房招商,为您争取强势政策,欢迎接洽 400-0123-021

产业招商/厂房土地租售:
或微信/手机:; ;
请说明您的需求、用途、税收、公司、联系人、手机号,以便快速帮您对接资源。
长按/扫一扫加葛毅明的微信号
扫一扫关注公众号
扫描二维码推送至手机访问。
凯发娱乐下载的版权声明:本文由公众号:园区产业招商发布,如需转载请注明出处。部份内容收集于网络,如有不妥之处请联系k8凯发删除 13391219793 仅微信















