
【】
项目位于深圳市宝安区,共500万平,未来规划约120万产业空间,分三期建设, 目前一期a19.9 万平如下:
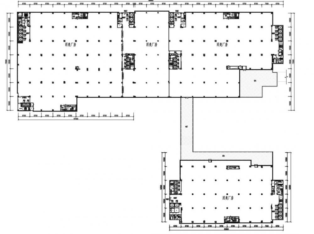
示意图
一期a基本参数
【总占地】:4.2万㎡
【总建面】:19.9万㎡
【产权年限】:50年
【用地性质】:m1
【产品性质】:厂房
【层高】:首层7.8m、2-3层5.4m、4-21层4.5m
【楼层荷载】:首层约2t/㎡、2-4f约1t/㎡、5-21f约0.75t/㎡
【电梯承重】:3吨货梯2部、2吨货梯4部、客梯3部
【停车位】:600个
【装修情况】:毛坯交付
【入驻条件】:税收350元/㎡/年、产值20000元/㎡/年
【交付时间】:预计2024年3月
【在售单位】2栋
【销售均价】1.5万元/㎡(楼层不同价格不同)
【产权面积】标准层3600㎡,每层独立产权
【首层平面图】:

【二层平面图】:



华夏幸福招商中心 13564686846
产业招商专业自媒体【园区产业招商】
超过26899园区招商人关注了我们!

↑ 关注公众号:园区产业招商

↑ 加入行业交流群(如群满,请关注公众号后加入)

提供产业园招商代理服务
灯塔瓴科·专业有效的产业园载体招商平台,以高效专业著称。现向全国产业园区提供专业招商运营代理服务。利用我们强大招商团队和数字化平台招商,确保高质量、快速完成招商。【重点承接上海、苏州、无锡、嘉兴、杭州、宁波等区域产业园区项目】

提供制造业企业选址服务 13564686846
幸福招商·面向全国广大县域经济源地接受招商引资服务委托, 服务制造业企业在全国各开发区落地并享受相关招商引资政策,厂房资源丰富、政策给力,已累计签约入园企业 3000余家,其中500强企业 33家,上市公司49家,国家高新技术企业 560余家,知名品牌 420余家,专精特新企业20家,外资企业 34家。

产业招商/厂房土地租售:
或微信/手机:; ;
请说明您的需求、用途、税收、公司、联系人、手机号,以便快速帮您对接资源。
长按/扫一扫加葛毅明的微信号
扫一扫关注公众号
扫描二维码推送至手机访问。
凯发娱乐下载的版权声明:本文由公众号:园区产业招商发布,如需转载请注明出处。部份内容收集于网络,如有不妥之处请联系k8凯发删除 13391219793 仅微信











