·无锡惠山智造产业园 无锡市惠山区洛社镇312国道 双层三层厂房出售 0-5000平均有
中南集团成立于1988年2月,现有员工50000余人,总资产逾千亿元,是中国五百强企业,国内品牌房企前20强,把在主板上市。中南
科是中南集团旗下的产业板块,主打产业地产。
中南高科无锡惠山智造产业园定位为集高端制造、研发测试、生产务、公共技术平台等功能的智能装备研发基地,计划引进高端装备制造业、新能源新材料、电子信息及互联网、精密仪器仪表、机器人、精密零部件、医疗器械企业,打造惠山区战略新兴产业集聚基地。
1、中南高科-无锡惠山智造产业园项目位于:无锡市惠山区洛社镇12国道与洛杨南路交界处博耳电力旁边。
2、关于交通:旁边就是312国道,运输方便。6公里对接高速入口,距离惠山站(地铁3号线) 6.7公里,距离无锡站18公里,地铁3号线直达硕放机场。
3、性质:国士50年工业用地,两证齐全(房产证及土地证,两证合-后为不动产证)产权厂房,产证在交付后1年内交付,写进合同。
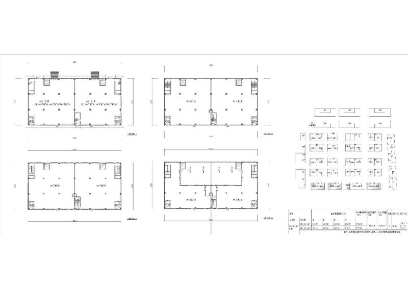
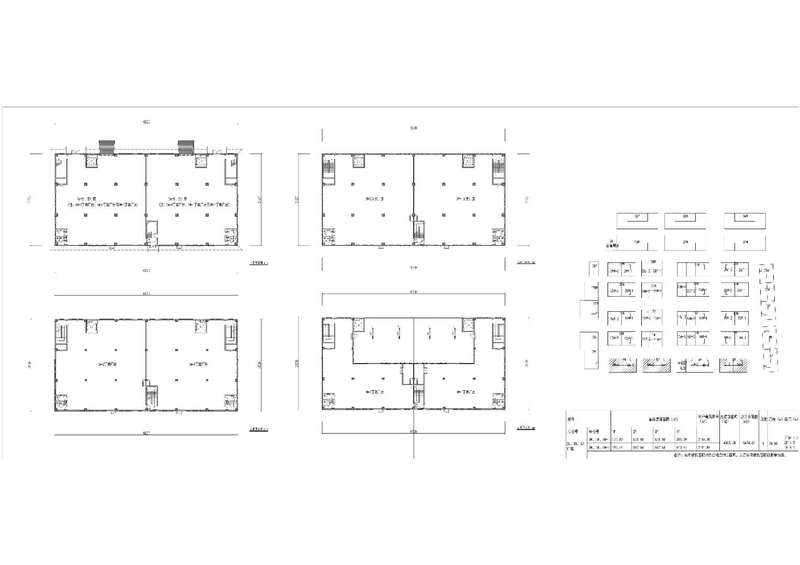
、我们的载体-楼层高: 一楼8m,二楼及以上层高是4.5m。
5、我们的户型面积比较灵活,1200平、 1600平、 1800平, 2500平、 3500平、 4000平、 5000平等, 基本满足所有中小企业需求!
6、中南集团建筑出身,秉承快建快销、薄利多销的模式,价格是非常有优势的,根据楼层及高户型定价
7、付款方式灵活:可一次性付款,首付50%后可贷款,可短期分期付款,蕞低首付3成。
8、一期也售完,二期我们的载体是期房, 预计2020年拿地,预计2021年交房。
无锡厂房项目,政府要求只能卖给高新技术企业、外资、高端装备、新材料、新能源、精密加工、有专利技术、有亮点的生产制造业,优质入园企业价格好谈
◆全国各园区现有工业用地接受厂房代建/定制厂房
◇中南高科园区直接招商热线 400-0123-021 或 公司总部营销招商
★欢迎推荐客户 渠道佣金0.8%













产业招商/厂房土地租售:
或微信/手机:; ;
请说明您的需求、用途、税收、公司、联系人、手机号,以便快速帮您对接资源。
长按/扫一扫加葛毅明的微信号
扫一扫关注公众号
扫描二维码推送至手机访问。
凯发娱乐下载的版权声明:本文由公众号:园区产业招商发布,如需转载请注明出处。部份内容收集于网络,如有不妥之处请联系k8凯发删除 13391219793 仅微信













